經過一兩個月斷斷續續的DIY,終於完成了新居的裝修;實踐證明,衹要多花巧思,敢於創新,其實小蝸居也可有大空間。
新居為三人一房單位,採用清新簡約風格設計,目的是要符合簡單、明快、環保、健康、舒適、省錢的大原則。我的理念、想法和要求有點與眾不同(包括我太太),別人未必能理解支持及滿足我的要求,所以衹能自己設計及DIY,確實是苦煞思量、費盡心機花了不少時間。
我不希望仔仔每天衹能毫無視野對住四面牆,呼吸的都是封閉的渾濁空氣,我希望他能在盡可能大的空間內隨意跑跳、打滾、撒野,隨意展現小朋友該有的童真和發泄澎湃得有點過剩的活力,還有任何時間內都可以在我的視野知悉狀況,因為小朋友的心智體能成長與環境息息相關的。
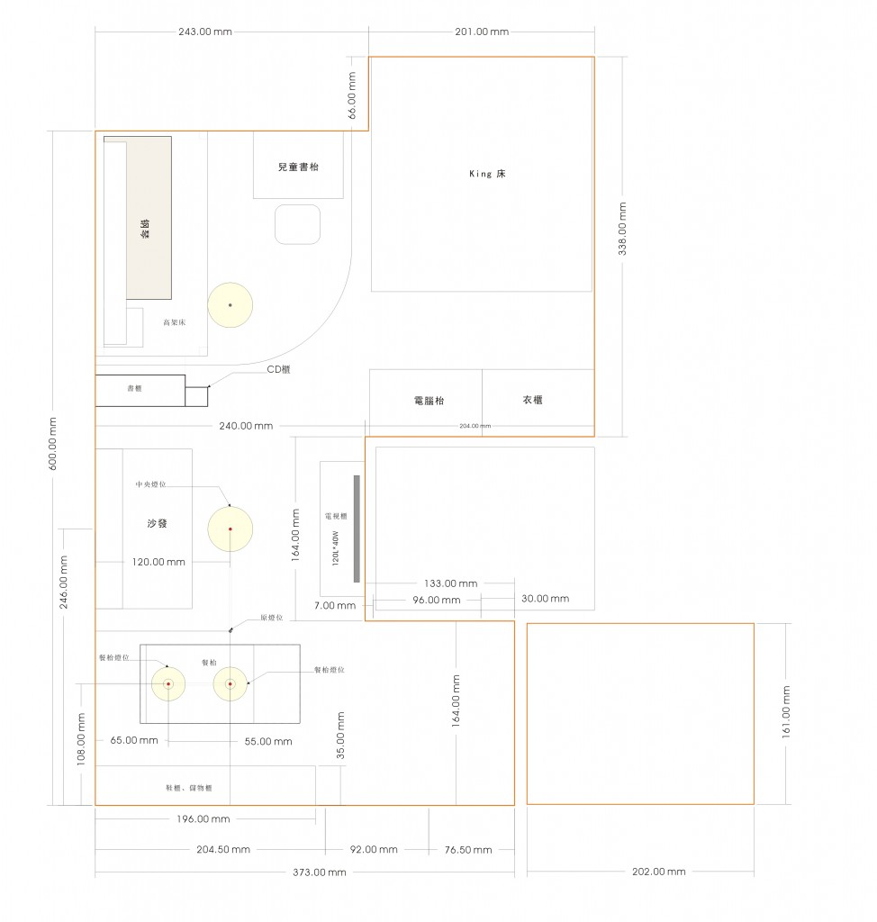
新屋畢竟是緊湊小戶,空間有限,為確保平時有明亮的自然採光及良好的空氣流通,我採用了活動折疊拉門作為房間間隔,既能在平時有最大的空間和視野,又能满足私隱的需要。地面採用了竹地板(強烈推薦,發現真是好處多多,打理容易,感覺溫馨,還發現最大的優點原來是防潮功能,在二月份最潮濕個幾日,屋邨周圍都在滴水地板牆壁如同水洗一樣,但我的蝸居卻絲毫沒有潮濕現象)。
由於沒有實牆間隔,家具的擺放就能相對靈活了,例如我的蝸居放用的是KING SIZE的大床,相信全個屋邨是絕無僅有的了,不過代價也不少,因為床褥太大太厚沒法入電梯,衹好自行從地下搬上30幾樓。
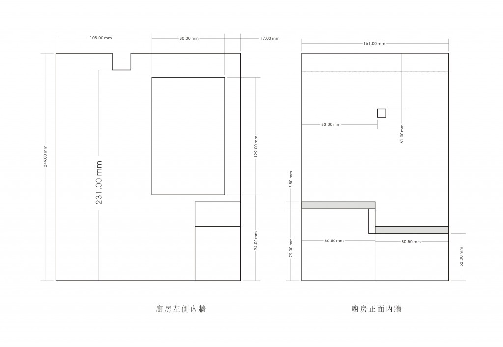
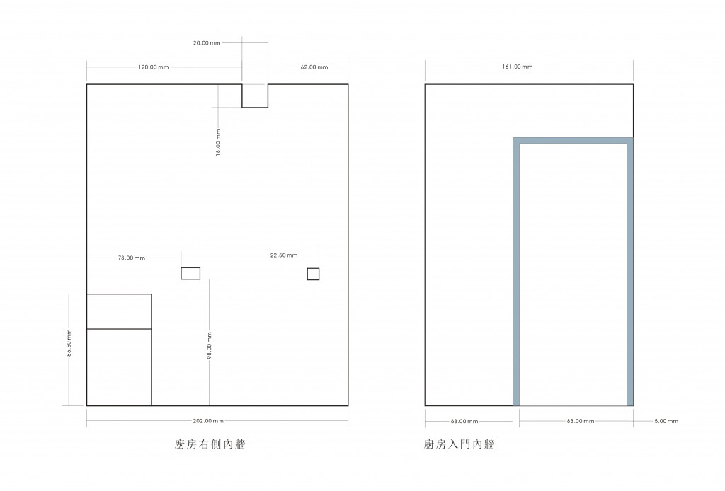
新居除了地板在香港一家專做竹地板的公司購買鋪裝外,牆面線路由太太的一位相熟朋友老公幫手施工,其他的自己一個人DIY完成。家具主要是在宜家購買及內地淘寶網購回來,省下不少訂製的費用。
新居入伙,最開心興奮的當然是仔仔啦!因為除了有他最愛天地之外,還多了對面邻居的姐姐做好朋友喲。
有了這個舒適宜人的安樂蝸,望著JETJET一天到晚開心地滿屋跑跳,所有的辛勞都已拋之九宵,換作心滿意足了。



















































































